This Service Includes:
- Email communication to discuss needs and goals
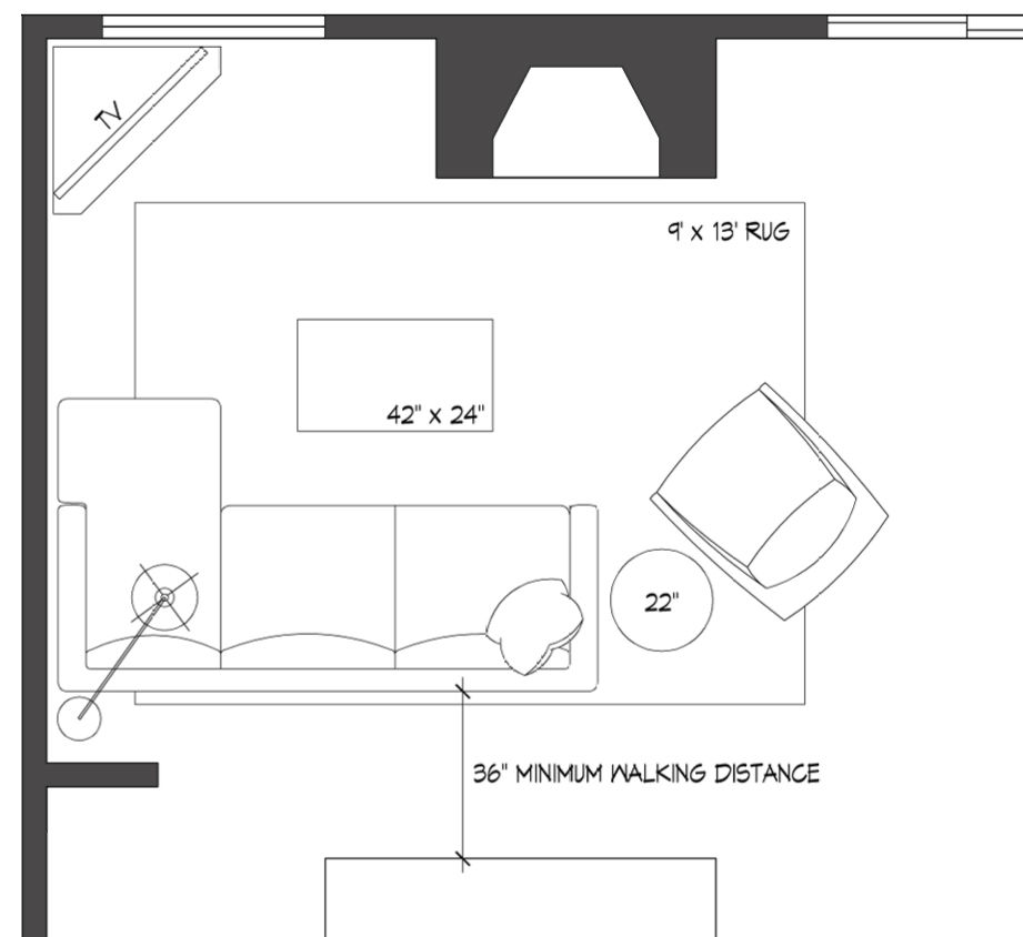
- A space plan showing new furniture layout with an outline of the decisions made by the designer, delivered via email (pdf format)
You will need to submit the following:
- Current photos of the room and any furniture that you would like to remain in the space
- An existing floor plan with accurate dimensions noted. This can be anything from a hand-drawn sketch to construction documents provided to you by the builder
- A completed Questionnaire (to be provided by Designer via email after purchase)
Turn-around time for this service is approximately 1 week
All sales are final
Space Planning/Furniture Layout
If a space feels difficult to arrange or furnish, this Space Planning service provides a clear solution. The process begins with evaluating existing pieces and those to be retained, followed by a careful analysis of the room’s dimensions to determine the most effective arrangement. Thoughtful new pieces are incorporated where needed to create a cohesive, functional layout that optimizes circulation and overall use of the space. The result is a balanced, intentional plan that eliminates awkward corners and crowded walkways, leaving a well-considered furniture arrangement.
Prices Starting at $99
